A New Chapter for Our Historic Home: Renovation Work Begins at OPAL

For nearly ninety years, OPAL has called the E.E. Roberts carriage house home. Since 1938, this remarkable building designed by one of Oak Park's most celebrated architects and OPAL member, has been the heart of our organization, a gathering place for our community, container for creative experience and excellence and a living piece of local history. We are thrilled to announce that a long-awaited chapter in that history is finally beginning: renovation work is officially underway.

A Building Worth Preserving

Frank Eben Roberts, better known as E.E. Roberts, was one of Oak Park's most prolific and beloved architects, responsible for hundreds of homes and buildings across the village in the late 19th and early 20th centuries. Roberts originally designed this carriage house, built in 1902, and again aided the Art League by renovating the building in 1937 for use as studio and gallery.

His work reflected a deep commitment to craftsmanship, character, and community, values that OPAL has shared throughout its own history. To steward a building bearing his legacy is both a privilege and a responsibility we take seriously.

That responsibility is precisely why this renovation has been decades in the making.

Long Overdue, But Worth the Wait

Since the 1990s, we have been aware of the need to improve accessibility within our historic building. A building this meaningful should be open and welcoming to everyone, and for too long, that simply hasn't been possible. Navigating our second floor has presented real barriers for visitors, students, and community members with mobility challenges, and we knew that had to change.

The process of renovating a historic structure is never simple. Balancing the requirements of modern accessibility standards with the preservation of architectural integrity takes time, planning, and careful coordination. But we are proud to say that in 2026, the wait is finally over. OPAL is able to make this happen with state grant funding specifically for helping historic spaces like ours become ADA compliant.


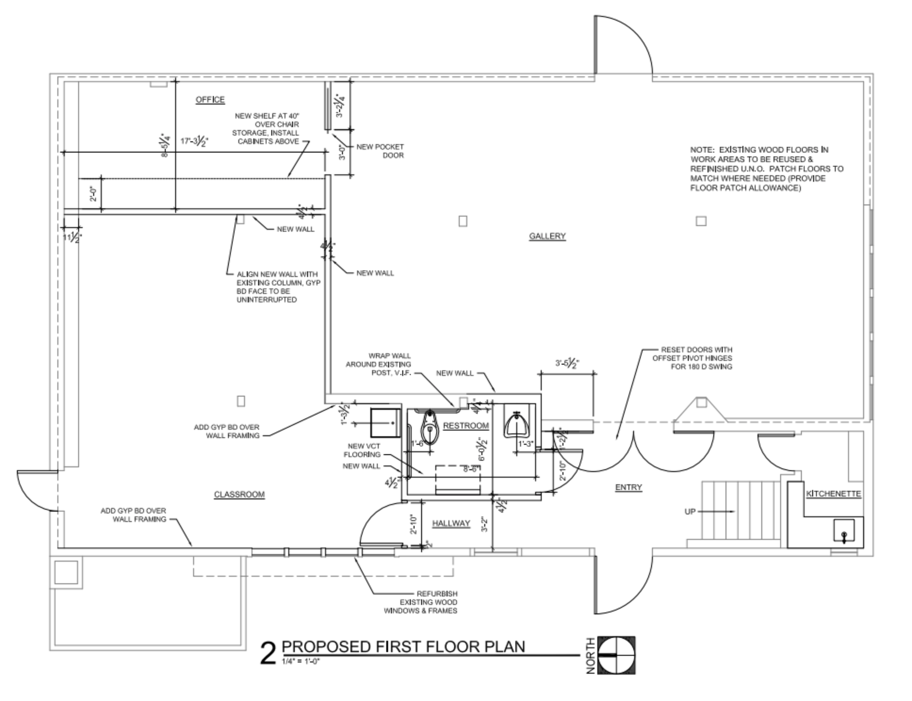
What's Changing

Our proposed first floor renovation plan focuses on two transformative additions:

An ADA-Compliant Restroom The centerpiece of the renovation is a fully ADA-compliant restroom on the main floor. This has long been the most critical accessibility gap in our building, and its addition will make a profound difference for visitors of all abilities.

A Ground Floor Classroom We are also creating a dedicated classroom space on the ground floor, making our educational programming accessible to those who cannot navigate stairs. Bringing learning to the ground level reflects our core belief that arts education should be available to everyone in our community.

Looking Ahead

This renovation is more than a construction project. It is an expression of who we are and who we want to serve. It is a commitment to our community that the doors of this historic carriage house will be open — truly open — to all.

We are grateful to everyone who has supported OPAL over the decades and helped make this moment possible. As work progresses, we ask for your patience with this process and the temporary upset the work may involve. We will keep you updated on milestones, timelines, and opportunities to celebrate this exciting new chapter together.


PHASE 2: ADA Compliant Restroom and Classroom

February 2026

We are working with Douglas Gilbert Architect, Inc.

As of February we are awaiting Village review and permitting.




PHASE 1: NEW ROOF

September 2024, completed October 2025

We are happy to announce that our state grant-funded building renovation will commence with the first phase which is a new roof! Check out the new shingle color! Work began Friday Sept 30 and has been coordinated by our locally owned Contractor, The Baronger Group.

Classes will continue as scheduled. Stay tuned for updates on our Instagram feed as the project progresses. 

Previous
Previous

Instructor Spotlight

Next
Next

Closing The Cabinet of Secret Art